
天壇公園の神楽署入り口。(12月11日撮影、北京=新華社記者/魏夢佳)
【新華社北京12月30日】中国北京市の名所、天壇は現存する世界最大かつ最も保存状態の良い古代皇室の祭祀(さいし)建築群で、国内外から多くの観光客が訪れる。天壇公園の南西端、赤い壁と灰色の瓦屋根で囲まれた中庭に樹齢600年を超えるエンジュの大木がある。明清時代に祭祀を担う音楽家や舞踊家を養成した「神楽署」に根を下ろしていることから「神楽槐」と呼ばれている。
五穀豊穣を祈る皇帝の儀式を見つめてきた古木は、歴史に刻まれた戦争犯罪の記憶を静かに訴えかけている。80年以上前、この地に「細菌工場」が置かれ、中国の人々に対し恐ろしい罪を犯していたことを知る人は少ない。
神楽署内の北側、灰色の壁には「侵華日軍細菌部隊跡地」と刻んだ大理石の碑がはめ込まれており、碑文には「九・一八事変(柳条湖事件)後、日本の侵略軍は中国に総人数2万人に上る大規模な細菌部隊を設置」と記されている。

天壇公園の神楽署にある「侵華日軍細菌部隊跡地」の碑。(12月11日撮影、北京=新華社記者/魏夢佳)
中国侵略日本軍が1937年8月、神楽署を占領し、天壇はかつてない災厄に見舞われた。日本軍は同年、神楽署にあった中央防疫処北平製造所(中華民国時代の防疫施設)に視察と称して立ち入り、設備や器具、実験室、生物製剤の処理能力を調査した。40年には勅令により「北支那防疫給水部」、通称「甲第1855部隊」が正式に設立され、神楽署に本部を置いた。旧日本軍が華北地域に設立した細菌戦部隊である。
部隊は野戦給水や感染症予防を装いつつ、ひそかに細菌を培養し、細菌戦を展開していた。天壇公園の解説員を務める梁梓昱(りょう・しいく)氏によると、1855部隊はペスト、コレラ、腸チフス、赤痢、黒熱病、マラリアなどの致死性の細菌や原虫を研究、生産し、それらを用いて製造した細菌兵器で中国の人々を殺害した。
神楽署が「細菌工場」の場所に選ばれた理由について、梁氏は、中央防疫処の設備や器具をそのまま利用でき、人目につきにくく、秘密裏に細菌実験などを行いやすかったと説明した。

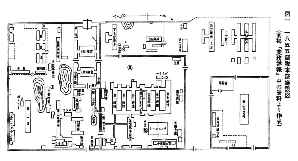
1855部隊本部の施設配置図。(資料写真、北京=新華社配信)
北京市档案学会の張斌(ちょう・ひん)副秘書長によると、1855部隊は北京に本部と三つの業務部門を置いていた。第一課は病理実験、第二課はワクチン製造を担い、第三課は細菌兵器研究所だった。本部と第二課が天壇公園の神楽署にあった。神楽署の北側は占拠後、さまざまな細菌戦用薬剤の大量生産に使われた。「地下にワクチン保管用の冷蔵庫も設置していた」と張氏は語った。
神楽署の碑文には「旧日本軍は殺人細菌兵器の開発のため、中国人を使った生体実験を行い、多くの中国人捕虜や民間人が実験対象とされ、惨殺された」と記されている。
45年8月15日、日本は敗戦し、降伏した。梁氏によると、1855部隊は一報を受けると直ちに細菌部隊に関する資料を廃棄し、証拠を焼却した。「破壊作業は三日三晩続き、実験用のノミだけでも容器1万個以上が持ち去られた」。日本軍は終戦後すぐに同部隊を解散させ、歴史から存在を消そうとした。

天壇公園の神楽署に立つエンジュの古木「神楽槐」。(北京=新華社記者/魏夢佳)
犯罪の証拠は焼却できても、歴史が消えることはない。
新中国成立後、神楽署は徐々に修復され、2012年には北京市の愛国主義教育拠点の第1陣に選ばれた。
梁氏と同僚らは長年にわたり歴史資料の整理を続けており、訪れる人々に旧日本軍が犯した恐るべき罪を語り伝えている。(記者/魏夢佳、楊淑君)